販売価格
3,490
万円(税込)
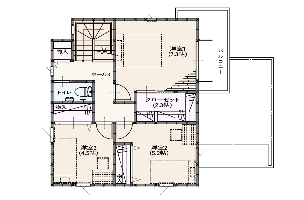
| 間取り | 3LDK+パントリー+S.I.C+W.I.C |
|---|---|
| 敷地面積 | 72.59坪(240㎡) |
| 建物面積 | 31.43坪(104.12㎡) |
| 交通 | JR宇都宮線「小金井駅」まで約1300m~1350m(徒歩17分) |
| 学区 | 国分寺小学校 約400m 国分寺中学校 約500m |
| お支払い例 | 【月々支払い】81,015円/月 返済期間40年、3年固定金利0.55%(当初3年間、特別割引適用後金利)、自己資金なし、借入額3,490万円、ボーナス支払いなし |
水回り集中設計で家事ラク!リビング収納付きでLDKもすっきり片付く快適な住まい
≪見どころポイント≫
■リビングは間接照明がベージュのタイル調のクロスをやさしく照らし上質な空間を演出
■電動シャッター完備で開閉も楽々。利便性とデザイン性が両立された設計
■キッチンからリビングを見渡せる間取りで子育て世帯も安心
■洗面所と浴室をキッチンの後ろに隣接することで効率がUP
■SIC、リビングクローク、主寝室にWICと収納充実
≪周辺環境≫
■国分寺小学校・中学校まで 徒歩約7分
■ミニストップ下野小金井店まで 徒歩約3分
■オータニ自治医大店まで 徒歩約17分
■小金井中央病院まで 徒歩8分






完成イメージパースはCG合成によるイメージ画像の場合や現況と異なる場合があります。